Modifying a PRO4896 Base

Hi. I’m very new to this.

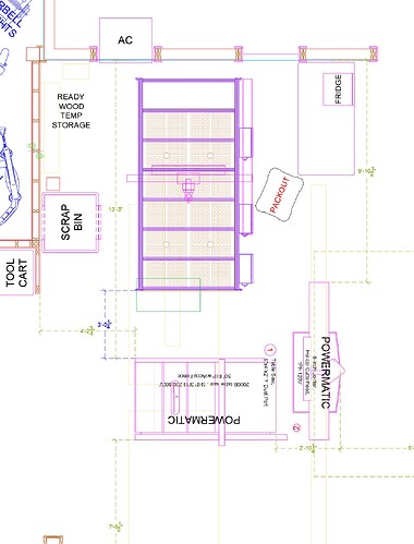
I have ordered the Pro4896 system. I’m currently finalizing the location specifications for this system in my shop and have run into one clearance issue with a Powermatic PM2000 Table Saw which will be locate three feet off the foot of the new CNC Bed.

I have also ordered a vacuum pump and will be milling a 3/4” vacuum plate to create the channels for proper vacuum hold down. So there will be two 3/4” sheets on top of the standard 20/80 frame. If my math is correct, the clearance over the top of the 3/4” MDF spoil board with a 3/4” vacuum plate on top of the 20/80 extrusions as provided from AVID will be roughly 38” from the finished floor. My Table Saw outfeed is at approximately 34.5” from the finished floor meaning the table saw surface is much shorter then the planned CNC bed.

Does anyone see any issue with cutting four inches off the 20/80 legs of the CNC Base while in initial assembly to create proper outfeed clearance for the adjoining table Saw? I believe I would prefer a shorter working height on the overall CNC at any rate. I just want to be sure I do not create any major operational issues with the CNC by modifying the base height.

Thank you.

Mike

No issue as long as you don’t cut off the end with the cam bolts milled in. On the opposite end of the vertical legs is where an end plate is attached for the leveling feet and it attaches with two bolts that are screwed into pre threaded (I think…) screw races so you may need to rethread if you cut that part off.

I’m 6’-1” and I really appreciate the stock height because it make for comfortable assembly table. Depending on your height you might appreciate it too and so the better answer might be add height to your cabinet saw…

1 Like

Thank you for the quick response.

I am fortunate enough to have a large dedicated assembly table. While I am 6’-2” tall, I guess I’ve just gotten used to working at a standard 36” surface height. But the idea of raising my assembly table a few inches seems like an interesting possibility. The weight of my Table Saw and its alignment to other work surfaces like the jointer just makes more sense being what it already is.

Cheers.

You’re exactly right. Since it’s aluminum re-threading should be pretty easy.

FWIW I’m almost as tall as you and I don’t care that my CNC table is a little higher. Like you I have a large assembly table as well.

1 Like

Take a look to see how close to the floor that will put your electronics and spindle boxes.

1 Like

That should be fine, on EX the sensor plugs are on the side now. The VFD spindle cable comes out the bottom, it might be close but doable.

Boxes are super easy to relocate too. I have mine on a french cleat since I take them on and off all the time (I am a weird use case in that I do a ton of testing on my machine)

1 Like